Rif: 1167
MONDOVI'
CUNEO
Hai sempre sognato di ristrutturare un'abitazione in campagna per riflettere il tuo stile personale? Ora hai l'opportunità di farlo con questo immobile unico, libero su quattro lati e immerso nella tranquilla campagna di Mondovì. Questa casa, elevata su due livelli, è pronta per essere trasformata nel tuo rifugio personale.
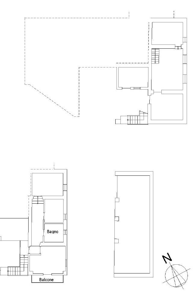
Al piano terreno, l'ingresso si apre direttamente sulla cucina abitabile, che offre già una buona base per diventare il cuore della casa. Adiacente alla cucina trovi un ampio soggiorno e una cameretta, ideali per creare un ambiente familiare accogliente. Inoltre, una botola nel soggiorno fornisce l'accesso diretto a una cantina al piano seminterrato, offrendo spazio extra per stoccaggio o per essere trasformata in una caratteristica cantinetta per vini.
La scala, attualmente esterna, conduce al piano superiore dove un corridoio distribuisce l'accesso a tre camere da letto e un bagno con vasca, perfetti per configurare una zona notte riservata e confortevole. Inoltre, l'ex stalla, con il suo fascino rustico, ha il potenziale di essere trasformata in una tavernetta invitante, aggiungendo ulteriore valore e carattere all'abitazione.
Circondata da un ampio giardino di circa 1200 mq su due lati, questa proprietà offre spazi esterni generosi per attività all'aria aperta, orticoltura o semplicemente per godersi la pace della natura circostante.
Questa casa è l'ideale per chi cerca un progetto personalizzabile: grazie alla possibilità di ristrutturare e ridisegnare secondo le proprie necessità, puoi trasformare quest'immobile in una casa che non solo rispecchia il tuo stile di vita, ma che è anche un vero investimento personale nella tranquillità e nella bellezza della campagna di Mondovì.
Non perdere questa chance unica di dar vita alla casa dei tuoi sogni. Contattaci oggi per scoprire come potresti trasformare questo spazio in un'oasi personale dove stile, comfort e natura si incontrano!
Tutte le informazioni contenute negli annunci immobiliari (caratteristiche tecniche, disposizione degli ambienti, accessori, dotazioni, ecc…) potrebbero non corrispondere in parte allo stato di fatto attuale dell'immobile.
Inoltre, i vari portali immobiliari utilizzano diversi criteri per la pubblicazione dello stesso annuncio che può generare differenze sui dati inseriti dalla Dielle Studiocasa S.A.S. e la stessa declina ogni responsabilità per eventuali involontarie incoerenze.
Al piano terreno, l'ingresso si apre direttamente sulla cucina abitabile, che offre già una buona base per diventare il cuore della casa. Adiacente alla cucina trovi un ampio soggiorno e una cameretta, ideali per creare un ambiente familiare accogliente. Inoltre, una botola nel soggiorno fornisce l'accesso diretto a una cantina al piano seminterrato, offrendo spazio extra per stoccaggio o per essere trasformata in una caratteristica cantinetta per vini.
La scala, attualmente esterna, conduce al piano superiore dove un corridoio distribuisce l'accesso a tre camere da letto e un bagno con vasca, perfetti per configurare una zona notte riservata e confortevole. Inoltre, l'ex stalla, con il suo fascino rustico, ha il potenziale di essere trasformata in una tavernetta invitante, aggiungendo ulteriore valore e carattere all'abitazione.
Circondata da un ampio giardino di circa 1200 mq su due lati, questa proprietà offre spazi esterni generosi per attività all'aria aperta, orticoltura o semplicemente per godersi la pace della natura circostante.
Questa casa è l'ideale per chi cerca un progetto personalizzabile: grazie alla possibilità di ristrutturare e ridisegnare secondo le proprie necessità, puoi trasformare quest'immobile in una casa che non solo rispecchia il tuo stile di vita, ma che è anche un vero investimento personale nella tranquillità e nella bellezza della campagna di Mondovì.
Non perdere questa chance unica di dar vita alla casa dei tuoi sogni. Contattaci oggi per scoprire come potresti trasformare questo spazio in un'oasi personale dove stile, comfort e natura si incontrano!
Tutte le informazioni contenute negli annunci immobiliari (caratteristiche tecniche, disposizione degli ambienti, accessori, dotazioni, ecc…) potrebbero non corrispondere in parte allo stato di fatto attuale dell'immobile.
Inoltre, i vari portali immobiliari utilizzano diversi criteri per la pubblicazione dello stesso annuncio che può generare differenze sui dati inseriti dalla Dielle Studiocasa S.A.S. e la stessa declina ogni responsabilità per eventuali involontarie incoerenze.
Consistenze
| Descrizione | Superficie | Sup. comm. |
|---|---|---|
| Principali | ||
| Immobile - 1° piano | 95 Mq | 95 Mqc |
| Terreno - piano terra | 2.000 Mq | 500 Mqc |
| Totale | 595 Mqc | |
