Rif: 1266
ROCCA DE' BALDI
CUNEO
Proponiamo in vendita un terratetto situato nel cuore di Rocca de' Baldi, ideale per chi cerca un investimento o una soluzione abitativa versatile con ampi spazi.
L'immobile si compone di due appartamenti distinti.
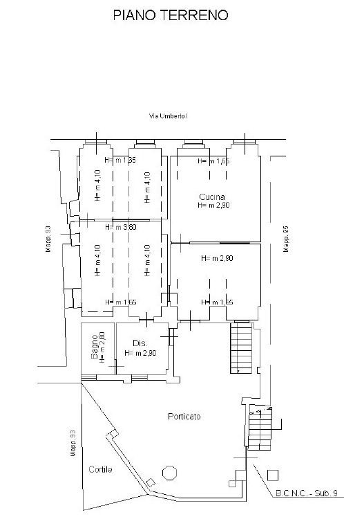
Il Piano Terra offre una zona giorno con cucina e soggiorno, due camere da letto, un bagno e un porticato coperto, funzionale per momenti all'aperto.
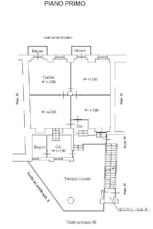
Il Piano Primo, accessibile tramite scala esterna, include una cucina, tre camere, un bagno e un terrazzo anch'esso coperto.
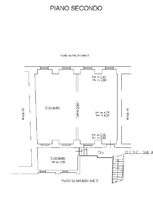
Completano la proprietà una cantina al piano seminterrato e una cellula, utili per stoccaggio o altri usi.
L'immobile necessita di ristrutturazione, offrendo la possibilità di personalizzare gli spazi secondo le proprie esigenze e creare unità abitative moderne. La posizione centrale garantisce facile accesso ai servizi del paese.
Un'opportunità concreta per realizzare il vostro progetto immobiliare in una posizione strategica.
Contattateci per maggiori informazioni e per fissare una visita.
Tutte le informazioni contenute negli annunci immobiliari (caratteristiche tecniche, disposizione degli ambienti, accessori, dotazioni, ecc…) potrebbero non corrispondere in parte allo stato di fatto attuale dell'immobile.
Inoltre, i vari portali immobiliari utilizzano diversi criteri per la pubblicazione dello stesso annuncio che può generare differenze sui dati inseriti dalla Dielle Studiocasa S.A.S. e la stessa declina ogni responsabilità per eventuali involontarie incoerenze.
Nota: Alcune delle foto presenti in questo annuncio sono state digitalmente rielaborate per mostrare potenziali arredamenti e finiture, al fine di aiutarti a immaginare la trasformazione futura dell'immobile.
L'immobile si compone di due appartamenti distinti.
Il Piano Terra offre una zona giorno con cucina e soggiorno, due camere da letto, un bagno e un porticato coperto, funzionale per momenti all'aperto.
Il Piano Primo, accessibile tramite scala esterna, include una cucina, tre camere, un bagno e un terrazzo anch'esso coperto.
Completano la proprietà una cantina al piano seminterrato e una cellula, utili per stoccaggio o altri usi.
L'immobile necessita di ristrutturazione, offrendo la possibilità di personalizzare gli spazi secondo le proprie esigenze e creare unità abitative moderne. La posizione centrale garantisce facile accesso ai servizi del paese.
Un'opportunità concreta per realizzare il vostro progetto immobiliare in una posizione strategica.
Contattateci per maggiori informazioni e per fissare una visita.
Tutte le informazioni contenute negli annunci immobiliari (caratteristiche tecniche, disposizione degli ambienti, accessori, dotazioni, ecc…) potrebbero non corrispondere in parte allo stato di fatto attuale dell'immobile.
Inoltre, i vari portali immobiliari utilizzano diversi criteri per la pubblicazione dello stesso annuncio che può generare differenze sui dati inseriti dalla Dielle Studiocasa S.A.S. e la stessa declina ogni responsabilità per eventuali involontarie incoerenze.
Nota: Alcune delle foto presenti in questo annuncio sono state digitalmente rielaborate per mostrare potenziali arredamenti e finiture, al fine di aiutarti a immaginare la trasformazione futura dell'immobile.
Consistenze
| Descrizione | Superficie | Sup. comm. |
|---|---|---|
| Principali | ||
| Immobile - piano terra | 111 Mq | 111 Mqc |
| Immobile - 1° piano | 111 Mq | 111 Mqc |
| Accessorie | ||
| Cantina - piano terra | 25 Mq | 6 Mqc |
| Soffitta - 2° piano | 80 Mq | 40 Mqc |
| Totale | 268 Mqc | |
