Rif: 1336
PIANFEI
CUNEO
Se stai cercando la classica casa "chiavi in mano" dove tutto è già deciso, questo annuncio non fa per te. Ma se quello che desideri è una tela bianca, un luogo che possa riflettere davvero la tua personalità, allora devi venire a vedere questo rustico a Pianfei.
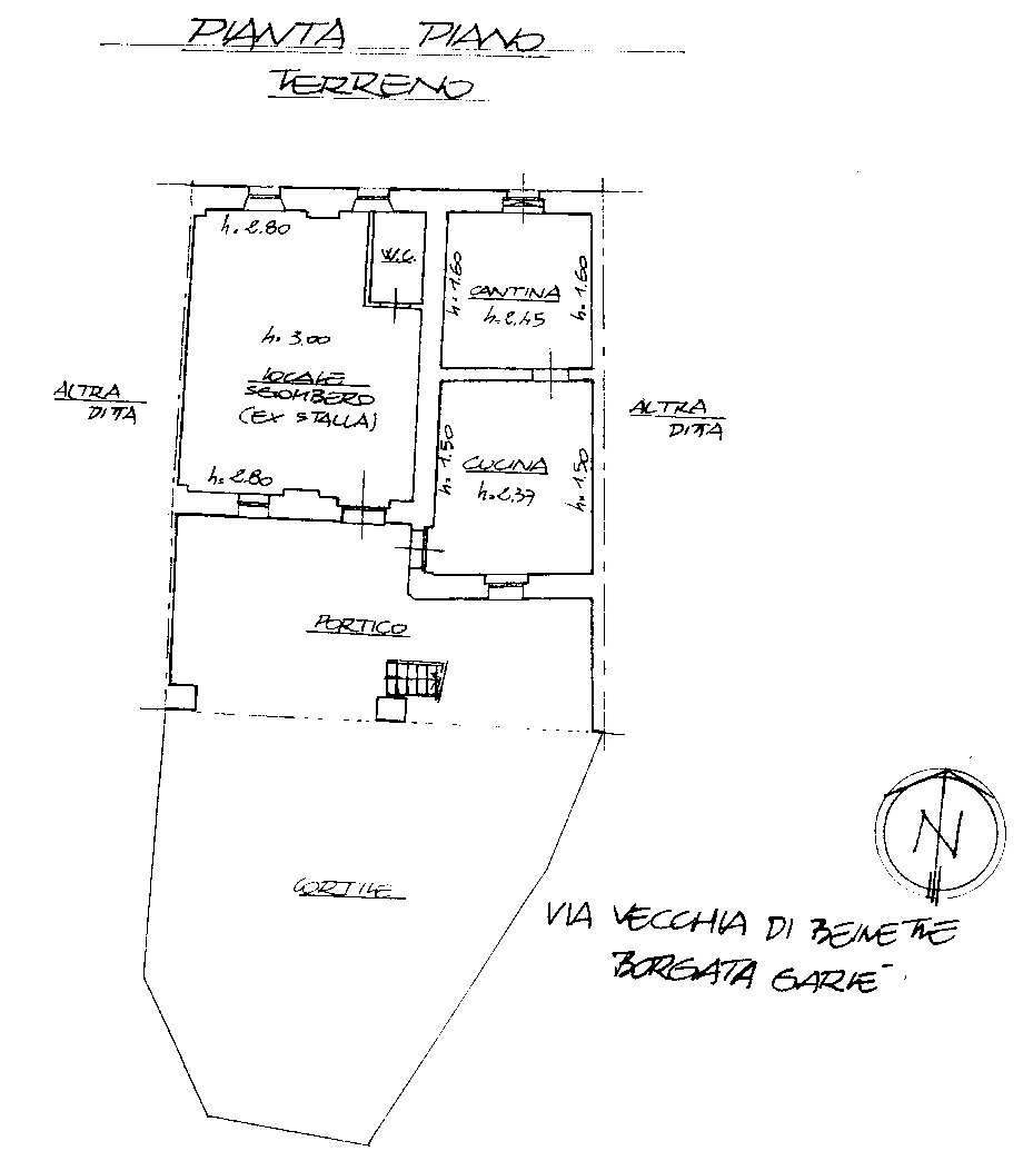
Situato in una posizione strategica — in un contesto tranquillo e riservato, ma a pochissimi passi dal centro del paese — questo immobile rappresenta l'essenza del potenziale. Si tratta di un rustico da ristrutturare completamente, sviluppato su due livelli e libero su due lati. Nonostante l'adiacenza, la casa gode di un'esposizione solare invidiabile, che garantisce luce naturale dall'alba al tramonto e permette di immaginare ambienti interni caldi e accoglienti.
La vera magia qui è lo spazio esterno: un giardino di pertinenza esclusivo, il luogo ideale dove veder crescere i tuoi progetti, che si tratti di un prato all'inglese, di un dehors per le cene estive o del tuo angolo di relax privato. All'interno, la libertà è totale: la struttura ti permette di disegnare ogni singola stanza, decidendo la disposizione degli ambienti e scegliendo materiali e finiture che parlino di te. È l'opportunità rara di vivere in una casa indipendente, con il fascino del rustico e il comfort di una progettazione moderna, senza rinunciare alla comodità di avere tutti i servizi del centro urbano a portata di mano. Un investimento che, grazie alle attuali agevolazioni per le ristrutturazioni, ti permette di costruire il tuo futuro esattamente come lo hai sempre sognato.
Situato in una posizione strategica — in un contesto tranquillo e riservato, ma a pochissimi passi dal centro del paese — questo immobile rappresenta l'essenza del potenziale. Si tratta di un rustico da ristrutturare completamente, sviluppato su due livelli e libero su due lati. Nonostante l'adiacenza, la casa gode di un'esposizione solare invidiabile, che garantisce luce naturale dall'alba al tramonto e permette di immaginare ambienti interni caldi e accoglienti.
La vera magia qui è lo spazio esterno: un giardino di pertinenza esclusivo, il luogo ideale dove veder crescere i tuoi progetti, che si tratti di un prato all'inglese, di un dehors per le cene estive o del tuo angolo di relax privato. All'interno, la libertà è totale: la struttura ti permette di disegnare ogni singola stanza, decidendo la disposizione degli ambienti e scegliendo materiali e finiture che parlino di te. È l'opportunità rara di vivere in una casa indipendente, con il fascino del rustico e il comfort di una progettazione moderna, senza rinunciare alla comodità di avere tutti i servizi del centro urbano a portata di mano. Un investimento che, grazie alle attuali agevolazioni per le ristrutturazioni, ti permette di costruire il tuo futuro esattamente come lo hai sempre sognato.
Consistenze
| Descrizione | Superficie | Sup. comm. |
|---|---|---|
| Principali | ||
| Immobile - 1° piano | 90 Mq | 90 Mqc |
| Totale | 90 Mqc | |
